RESIDENZE BOSCO VERDE

Nuove abitazioni di pregio tra le Dolomiti a Rocca Pietore (BL)

Residenze Bosco Verde è un nuovo intervento residenziale di pregio realizzato da Galiazzo Fratelli Costruzioni in località Bosco Verde, nel Comune di Rocca Pietore (BL), in un contesto naturale incontaminato nel cuore delle Dolomiti. Il progetto nasce con l’obiettivo di offrire abitazioni di elevata qualità costruttiva, perfettamente integrate nel paesaggio montano e progettate secondo i più moderni criteri di efficienza energetica e comfort abitativo.

Il complesso è composto da otto unità abitative inserite all’interno di un unico edificio servito da ascensore. Gli appartamenti, tutti tricamere, dispongono di doppi servizi e di un ampio soggiorno studiato per garantire luminosità, funzionalità degli spazi e qualità della vita quotidiana. Ogni unità è completata da garage di proprietà, cantina e posto auto esterno, offrendo così soluzioni complete sia per residenti sia per utilizzo turistico. La posizione rappresenta uno dei principali punti di forza dell’intervento. Residenze Bosco Verde si trova a 3 km dalla partenza della funivia della Marmolada e a 5 km dal comprensorio sciistico del Civetta, entrambi parte del circuito Dolomiti Superski, con collegamenti verso i principali passi dolomitici. Una fermata del bus navetta direttamente in prossimità dell’edificio consente un comodo collegamento con Malga Ciapéla e Alleghe, mentre la vicinanza a quest’ultima garantisce l’accesso a tutti i servizi primari.

La zona è ideale non solo per la stagione invernale, ma anche per il periodo estivo, grazie alla presenza di numerosi percorsi escursionistici, itinerari ciclabili e attività all’aria aperta, rendendo le unità adatte a un utilizzo annuale.           

Documenti allegati

PDF Capitolato delle opere 2981.21 KB

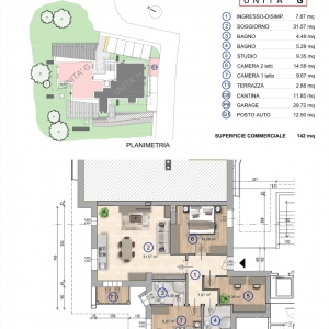
Abitazioni presenti

UNITÀ A - appartamento a piano terra con giardino IN VENDITA
Appartamento al piano terra, caratterizzato da spazi ben distribuiti e funzionali.L’unità è composta da due camere da letto singole, una camera da letto matrimoniale compresa di bagno padronale e cabina armadio, secondo bagno spazioso, ripostiglio e ampia zona giorno con accesso diretto al giardino esclusivo.La proprietà dispone inoltre di garage interrato, cantina e posto auto esterno ad uso esclusivo, inclusi nel prezzo.
UNITÀ B - appartamento a piano terra con giardino IN VENDITA
Appartamento al piano terra, caratterizzato da spazi ben distribuiti e funzionali.L’unità è composta da due camere da letto singole, una camera da letto matrimoniale compresa di bagno padronale e cabina armadio, secondo bagno spazioso, ripostiglio e ampia zona giorno con accesso diretto al giardino esclusivo.La proprietà dispone inoltre di garage interrato, cantina e posto auto esterno ad uso esclusivo, inclusi nel prezzo.
UNITA' C - appartamento a piano terra con giardino IN VENDITA
Appartamento al piano terra, caratterizzato da spazi ben distribuiti e funzionali. L’unità è composta da due camere da letto singole, una camera da letto matrimoniale compresa di bagno padronale e cabina armadio, secondo bagno spazioso, ripostiglio e ampia zona giorno con accesso diretto al giardino esclusivo. La proprietà dispone inoltre di garage interrato, cantina e posto auto esterno ad uso esclusivo, inclusi nel prezzo.
UNITA' D - appartamento a piano primo IN VENDITA
Appartamento al piano primo, caratterizzato da una distribuzione degli spazi equilibrata e funzionale. L’unità è composta da due camere singole, una camera matrimoniale con cabina armadio, bagno padronale e accesso a terrazza esclusiva; secondo bagno spazioso, ampia zona giorno con accesso a terrazza, ideali per vivere gli spazi esterni.Inclusi nel prezzo un garage interrato, una cantina e un posto auto esterno ad uso esclusivo.
UNITA' E - appartamento a piano primo IN VENDITA
Appartamento al piano primo, composto da tre camere da letto, due bagni entrambi finestrati, ripostiglio e ampia zona giorno con accesso al terrazzo. La proprietà è completata da garage di generose dimensioni, cantina e posto auto esterno ad uso esclusivo, inclusi nel prezzo.
UNITA' F - Appartamento a piano primo IN VENDITA
Appartamento al piano primo, caratterizzato da una distribuzione degli spazi razionale e funzionale. L’unità è composta da tre camere da letto e due bagni entrambi finestrati, oltre a un comodo ripostiglio. La zona giorno si affaccia su un ampio terrazzo, ideale per momenti di relax all’aperto.Inclusi nel prezzo un garage di generose dimensioni, una cantina e un posto auto esclusivo
UNITÀ G - Attico a piano secondo IN VENDITA
L’attico di Residenze Bosco Verde, situato al secondo e ultimo piano dell’edificio, rappresenta la soluzione abitativa di maggior pregio dell’intervento, progettata per offrire massima privacy, luminosità e comfort abitativo in un contesto alpino esclusivo.L’unità si sviluppa su un unico livello ed è caratterizzata da una distribuzione degli spazi razionale e funzionale, con una netta separazione tra zona giorno e zona notte. L’ingresso conduce a un ampio soggiorno con zona pranzo, valorizzato da grandi aperture che garantiscono un’elevata illuminazione naturale e una forte relazione visiva con il paesaggio montano circostante. La zona giorno si affaccia su balconi panoramici, ideali per godere della vista sulle Dolomiti e dell’esposizione favorevole.La zona notte è composta da tre camere da letto,
UNITA' H - Attico al piano secondo VENDUTO

Dettagli Cantiere

RESIDENZE BOSCO VERDE
Indirizzo: Via Marmolada
Città: Rocca Pietore (BL) Italia
Categoria: Settore Residenziale

Avanzamento lavori

In costruzione

Richiedici informazioni su RESIDENZE BOSCO VERDE

Tramite il seguente modulo, puoi contattarci e richiederci informazioni sul cantiere e le sue abitazioni.

In alternativa puoi telefonarci al numero:
+39 049 8960391